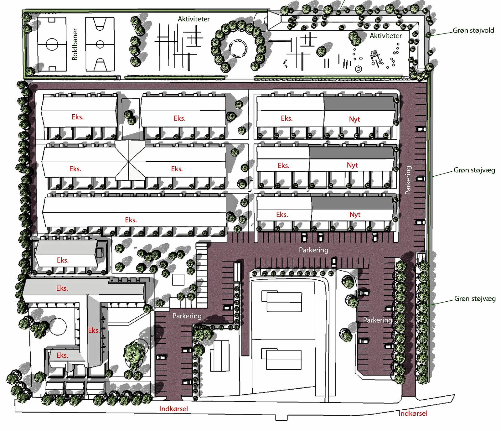
Endelig: 80 boliger på den nedlagte skole i Jersie

Der er nu gået over fire år siden, at byrådet besluttede at sætte Jersie Skole til salg, da den lille folkeskole blev lukket i forbindelse med en omdannelse af skoledistrikterne. Men det gik ikke lige efter planen, selvom der blevet fundet en køber til skolen. For - trods en masse store armbevægelser - endte det med at køberne smed håndklædet i ringen og satte skole til salg.

Flere lokale nyheder

Loading...

Nyheder fra Sjælland

Loading...